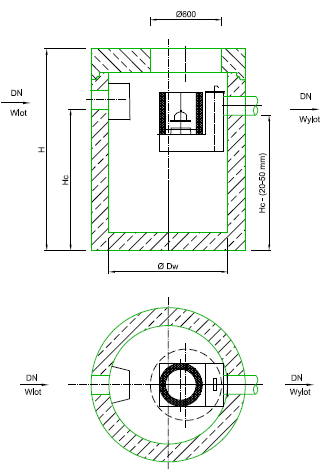
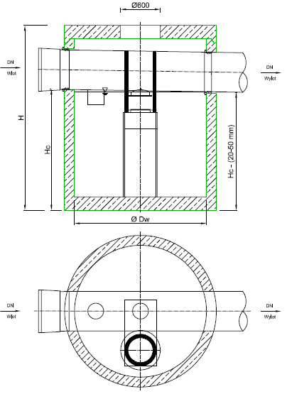
Wielkość nominalną (ng) separatora dobiera się na podstawie obliczenia ilości ścieków wymagających podczyszczenia przed wprowadzeniem do wód lub do ziemi zgodnie z Rozporządzeniem Ministra Ochrony Środowiska z dnia 24 lipca 2006r Dz.U. 137 poz. 984 § 19.1. Wartość ta nie może być mniejsza niż 15l/s x ha i obliczana jest na podstawie wzoru:
 
															 
											 
															 
															